Lettomanoppello¶
The pilot sites in Lettomanoppello (Italy) includes two buildings: the Municipality offices and the Primary School. Lettomanoppello is a town in the province of Pescara, Italy. Lettonoppello has an area of 15.00 square kilometers and is located in a hill, 370 meters above sea level, on the edge of the Maiella National Park.
The Municipality offices of Lettomanoppello is a building structured in four floors.
The ground floor is divided in 14 rooms indoor and 1 rooms outdoor addressed to different activities such as Store room, stairwell, thermal power plant, restroom, corridor, administration office. The total surface area that will be involved in the EDISON Pilot at ground floor is 290,00 m2 wide.
The first floor is divided in 9 rooms indoor addressed to different activities such as the ground floor. The total surface area that will be involved in the EDISON Pilot at first floor is 136,00 m2 wide.
The second floor is divided in 14 rooms indoor addressed to the same activities as the other floors. The total surface area that will be involved in the EDISON Pilot at second floor is 282,00 m2 wide.
The third floor is divided in 4 rooms indoor addressed to different activities such as the other floors. The total surface area that will be involved in the EDISON Pilot at third floor is 153,00 m2 wide.
The building is structured in two floors: a ground floor and a first floor. The ground floor is divided in 26 rooms indoor and 1 rooms outdoor addressed to different activities such as kitchen, classroom, w.c., corridor, lumber room, atrium. The total surface area that will be involved in the EDISON Pilot at ground floor is 727,03 m2 wide. The first floor is divided in 18 rooms indoor addressed to different activities such as archive, classroom, w.c., corridor, dinning hall. The total surface area that will be involved in the EDISON Pilot at first floor is 727,52 m2 wide.
Savings¶
Lettomanoppello Municipality offices
For more details visit the eeMeasure tool and the EDISON deliverable D5.1.1 also covering qualitative surveys.
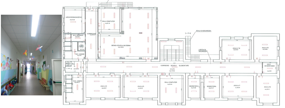
Lettomanoppello Primary School
For more details visit the eeMeasure tool and the EDISON deliverable D5.1.1 also covering qualitative surveys.
Service¶
In the two pilots (lmp 01 and lmp 02) are operative 67 ICT components (sensors) to contribute to the energy saving. The table below reports the number, typology of sensors and in particular the estimated amount of average 6.6 and 16.9 kWh saved, on monthly base, by each sensor.





